Trilocale in vendita

Alfonsine, Viale Stazione
€ 128.000
3 locali 3 locali
70 Mq 70 Mq
1 bagno 1 bagno

Trilocale in vendita

Alfonsine, Viale Stazione

Descrizione annuncio

ALFONSINE - VIALE STAZIONE

( L'immobile ha in essere un contratto regolare di affitto in scadenza a Febbraio 2026)

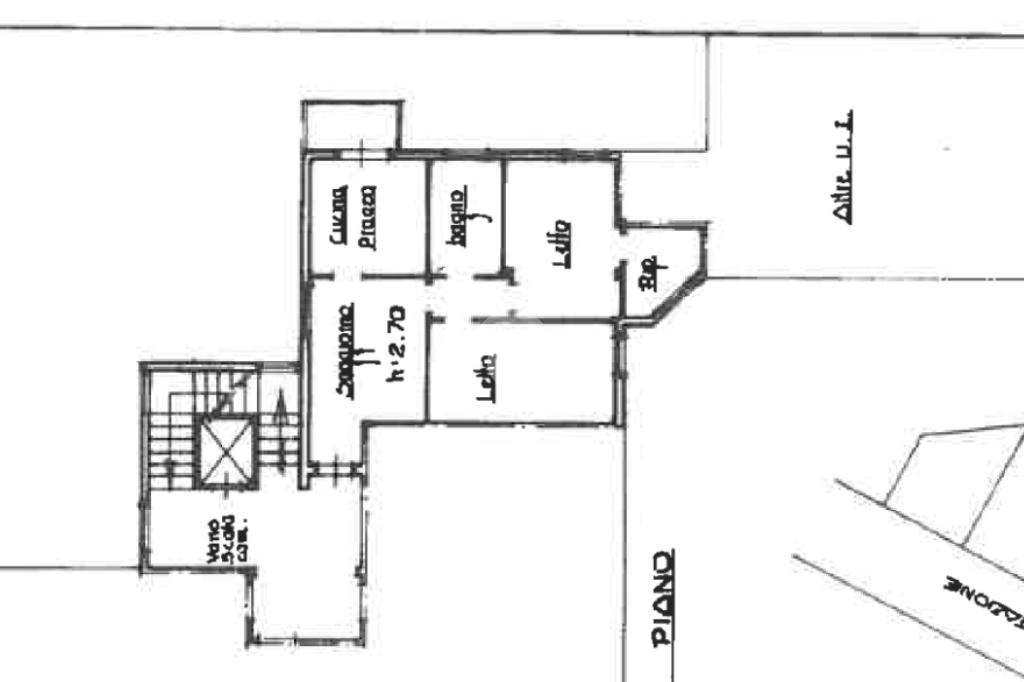
Proponiamo in vendita, in zona tranquilla, appartamento al secondo piano con ascensore così composto:

Accediamo nell'ampia zona giorno con cucina con accesso diretto al balcone, proseguendo troviamo il bagno finestrato con box doccia, due camere da letto, una doppia e l'altra matrimoniale con ripostiglio dove è stata cretata una cabina armadio.

L'immobile dispone di riscaldamento autonomo e garage di proprietà.

Mostra tutto

Nelle vicinanze

Trasporto pubblico Trasporto pubblico
Alfonsine
Alfonsine
220 m
Scuole Scuole
Scuola Media Alfredo Oriani
450 m
Scuola Elementare Giacomo Matteotti
610 m
Farmacia Farmacia
Antica Farmacia Lugaresi
1,1 Km
Supermercati Supermercati
Conad
650 m
Coop
710 m
Negozi Negozi
Forno
870 m
Conad
1,1 Km
Ristoranti Ristoranti
Stella
210 m
Ristorante
540 m
Al gallo
1,1 Km
Cantina
1,1 Km
Le Spighe - Non solo Piadine
2,0 Km
Mostra tutto

Caratteristiche

Rif.:
61115026
Piano:
2 di 2 con ascensore (Piano medio)
Box:
1
Posti auto:
1
Balconi:
1
Camere da letto:
2
Mostra tutto
Prezzo Prezzo
€ 128.000
Rata mutuo Rata mutuo
€ 586 / mese
Spese annue Spese annue
€ 400
Proponi il tuo prezzoProponi il tuo prezzo

Classe Energetica

Questo immobile è esente da classe energetica
Anno di costruzione:
1990
Riscaldamento:
Autonomo
Tipo impianto:
A radiatori
Tipo alimentazione:
Metano

Ti interessa visionare l'immobile?

Fissa un appuntamento  Fissa un appuntamento

Richiedi informazioni

* Questi campi sono obbligatori

Calcola il tuo mutuo

Semplice e senza impegno
Anticipo

( % )
Mutuo

( % )

pochi semplici passi

inserisci i tuoi dati
Questionario completato
Grazie per aver richiesto un appuntamento senza impegno con un nostro Consulente del Credito e Assicurativo.

Hai inserito correttamente tutti i dati necessari e a breve riceverai una e-mail con un link da convalidare per inviare i tuoi dati.
Affiliato
Immobiliare Punta Marina Srl
Viale Dei Navigatori, 23 48122 Ravenna (RA)

Il nostro staff


  • Rocco Basanisi
    Collaboratore

  • Francesca Paesano
    Coordinatrice

  • Federico Pozzi
    Collaboratore
Viale Dei Navigatori, 23 48122 Ravenna (RA)
Zona: Punta Marina Terme - Marina di Ravenna
Mostra su mappa
Orari: LUNEDI - VENERDI 9.00-13.00 / 15.00-19.00 SABATO 9.00-13.00, pomeriggio su appuntamento
Affiliato
Immobiliare Punta Marina Srl
Viale Dei Navigatori, 23 48122 Ravenna (RA)

2025 Tecnocasa Franchising S.p.A. - P. IVA 08365160152 - Via Monte Bianco 60/A 20089 Rozzano (MI). Ogni agenzia ha un proprio titolare ed è autonoma. Privacy policy | Policy utilizzo | Cookie policy