Rustico in vendita

Alfonsine, Via San Savino
€ 45.000
Prezzo aggiornato
485 Mq 485 Mq
1 bagno 1 bagno

Rustico in vendita

Alfonsine, Via San Savino

Descrizione annuncio

ALFONSINE - VIA SAN SAVINO

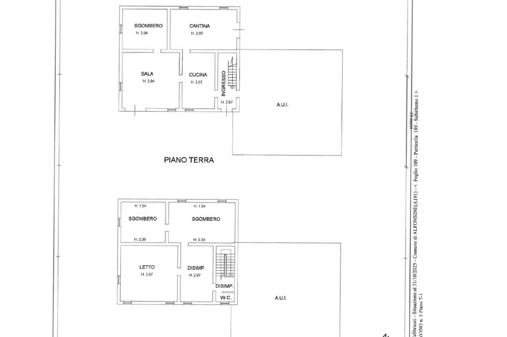
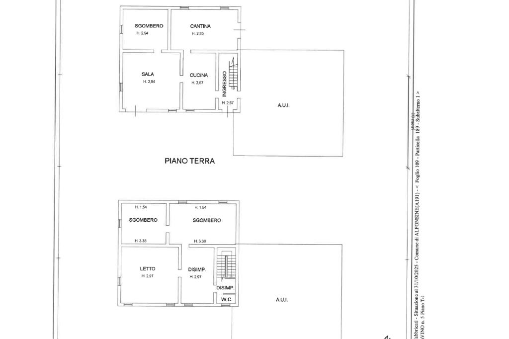
In posizione tranquilla e immersa nel verde, proponiamo casa indipendente di circa 250 mq con ampio giardino privato e area di parcheggio.
L'immobile si sviluppa su due livelli:

Piano terra: possibilità di creare una cucina abitabile, sala separata e due camere da letto;

Primo piano: due ulteriori camere, un bagno e un ripostiglio.

A completare la proprietà, un capannone di 233mq ad uso personale adiacente alla casa, ideale come deposito, laboratorio o spazio hobby.

Perfetta per chi cerca tranquillità, spazio e indipendenza, con la possibilità di personalizzare gli ambienti secondo i propri gusti.

Mostra tutto

Nelle vicinanze

Scuole Scuole
Scuola Media Alfredo Oriani
2,7 Km
Scuola Elementare Giacomo Matteotti
3,0 Km
Supermercati Supermercati
Coop
2,6 Km
Ristoranti Ristoranti
Ristorante
2,8 Km
Al gallo
3,0 Km
Mostra tutto

Caratteristiche

Rif.:
61140412
Piano:
1 di 1 (Piano su più livelli)
Posti auto:
1
Camere da letto:
4
Arredamento:
Parziale
Condizionamento:
Assente
Mostra tutto
Prezzo Prezzo
€ 45.000
Rata mutuo Rata mutuo
€ 212 / mese
Spese annue Spese annue
€ 0
Proponi il tuo prezzoProponi il tuo prezzo

Classe Energetica

G
G
G
G
G
G
G
G
G
Anno di costruzione:
1960
Riscaldamento:
Assente

Prezzo ridotto di €1 (40%%)

Ti interessa visionare l'immobile?

Fissa un appuntamento  Fissa un appuntamento

Richiedi informazioni

Clicca su Leggi per aprire l'informativa
* Questi campi sono obbligatori

Calcola il tuo mutuo

Semplice e senza impegno
Anticipo

( % )
Mutuo

( % )

pochi semplici passi

inserisci i tuoi dati
Questionario completato
Grazie per aver richiesto un appuntamento senza impegno con un nostro Consulente del Credito e Assicurativo.

Hai inserito correttamente tutti i dati necessari e a breve riceverai una e-mail con un link da convalidare per inviare i tuoi dati.
Affiliato
Immobiliare Punta Marina Srl
Viale Dei Navigatori, 23 48122 Ravenna (RA)

Il nostro staff


  • Rocco Basanisi
    Collaboratore

  • Francesca Paesano
    Coordinatrice

  • Federico Pozzi
    Collaboratore
Viale Dei Navigatori, 23 48122 Ravenna (RA)
Zona: Punta Marina Terme - Marina di Ravenna
Mostra su mappa
Orari: LUNEDI - VENERDI 9.00-13.00 / 15.00-19.00 SABATO 9.00-13.00, pomeriggio su appuntamento
Affiliato
Immobiliare Punta Marina Srl
Viale Dei Navigatori, 23 48122 Ravenna (RA)

2025 Tecnocasa Franchising S.p.A. - P. IVA 08365160152 - Via Monte Bianco 60/A 20089 Rozzano (MI). Ogni agenzia ha un proprio titolare ed è autonoma. Privacy policy | Policy utilizzo | Cookie policy