Trilocale in vendita

Ravenna, V.le Ciro Menotti - Marina Di Ravenna
€ 149.000
3 locali 3 locali
62 Mq 62 Mq
1 bagno 1 bagno

Trilocale in vendita

Ravenna, V.le Ciro Menotti - Marina Di Ravenna

Descrizione annuncio

MARINA DI RAVENNA - VIA CIRO MENOTTI

(L'immobile ha in essere un contratto regolare di affitto)

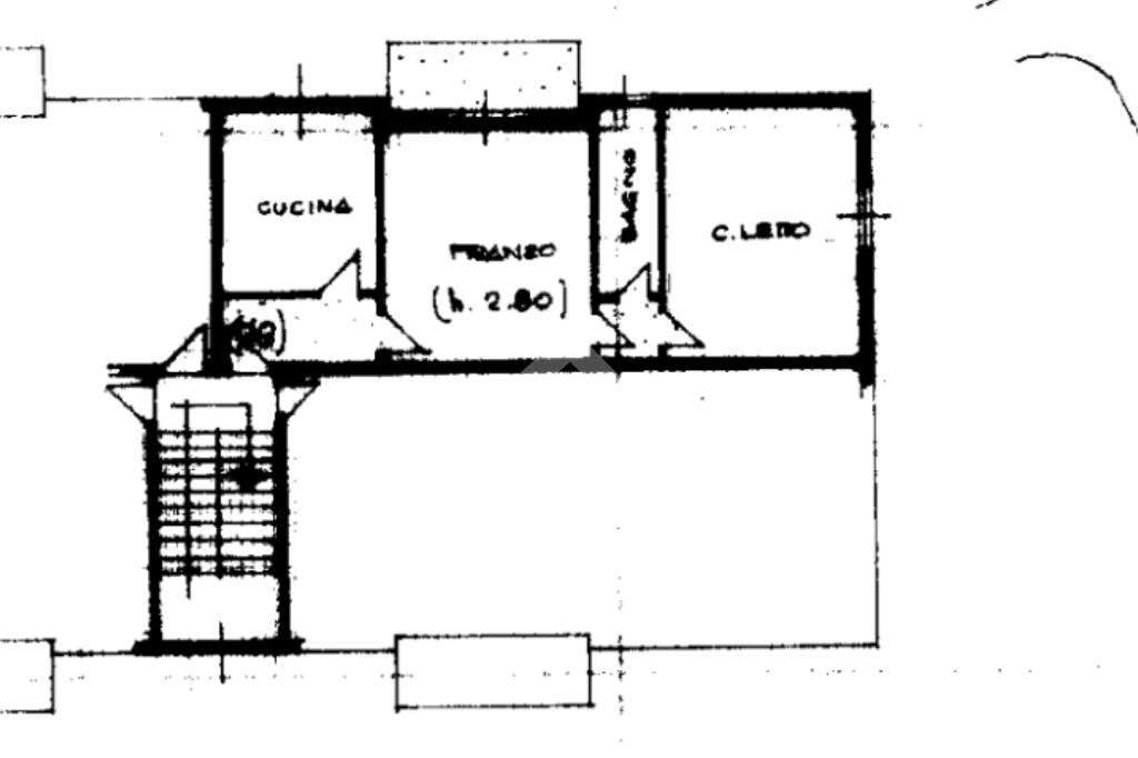
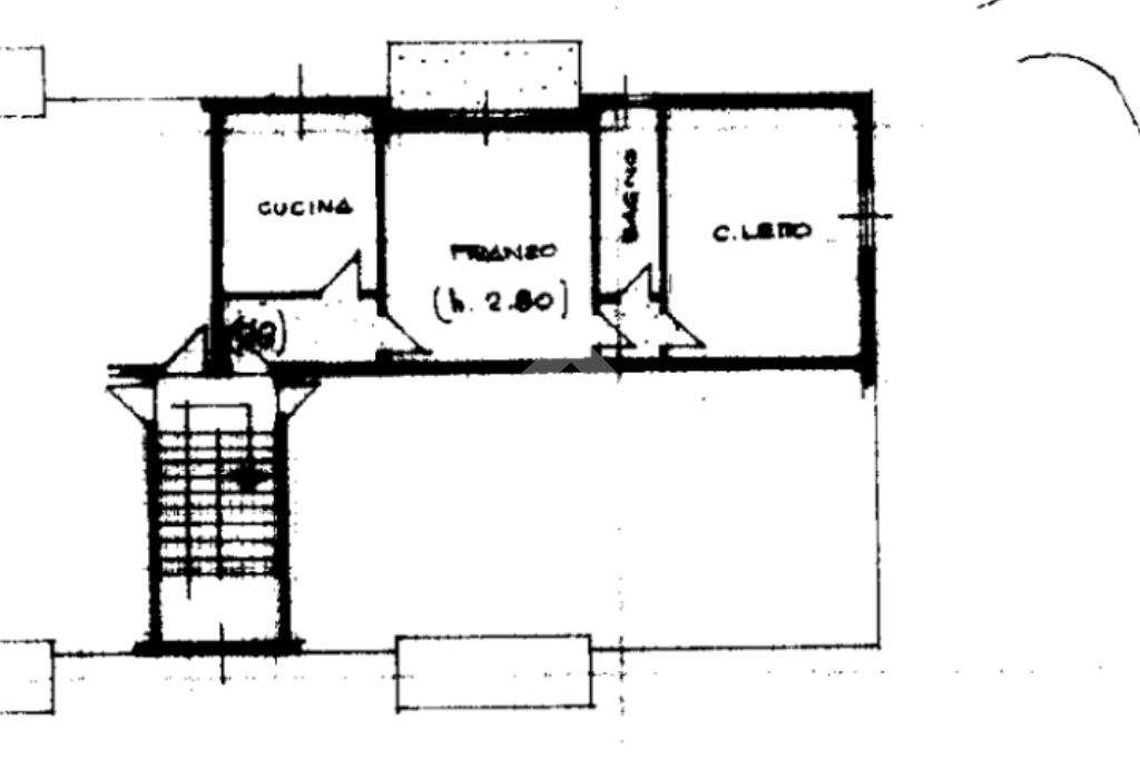
In una zona comoda e tranquilla a due passi dalle scuole e dai principali servizi, proponiamo in vendita un trilocale al primo piano così composto:

Entrando troviamo una zona giorno luminosa con cucina a vista in open space e accesso a un balconcino.

La zona notte offre una camera matrimoniale, una camera singola e un bagno finestrato con box doccia.

L’appartamento è dotato di riscaldamento autonomo e aria condizionata, per garantire comfort tutto l’anno.

Completa la proprietà una cantina privata al piano terra.

Che aspetti? contattaci per un appuntamento

Mostra tutto

Nelle vicinanze

Trasporto pubblico Trasporto pubblico
Navetto Mare - Marchesato
Navetto Mare - Marchesato
310 m
Trasporto pubblico
480 m
Ricariche auto elettriche Ricariche auto elettriche
Hera Marina di Ravenna
690 m
Scuole Scuole
Scuole
180 m
Farmacia Farmacia
Comunale 5
950 m
Supermercati Supermercati
despar
630 m
Supermercati
2,0 Km
Negozi Negozi
inCoop
1,2 Km
Bar Bar
Caffè del Mare
760 m
Rocksea Bar
800 m
Bar Negramaro
800 m
Bagno Waimea n. 14
830 m
Bar Timone
1,3 Km
Ristoranti Ristoranti
Mowa Street Bar and Restaurant
690 m
Le Torri
810 m
Ristorante Riesling Griglia e Cucina
1,1 Km
La Nuova Rosa dei Venti
1,1 Km
Trattoria Cubana da Irma e Pino
1,2 Km
Mostra tutto

Caratteristiche

Rif.:
61107150
Piano:
1 di 1 (Piano medio)
Balconi:
1
Camere da letto:
2
Arredamento:
Parziale
Condizionamento:
Autonomo
Mostra tutto
Prezzo Prezzo
€ 149.000
Rata mutuo Rata mutuo
€ 683 / mese
Proponi il tuo prezzoProponi il tuo prezzo

Classe Energetica

Questo immobile è esente da classe energetica
Anno di costruzione:
1970
Riscaldamento:
Autonomo
Tipo impianto:
A radiatori
Tipo alimentazione:
Metano

Ti interessa visionare l'immobile?

Fissa un appuntamento  Fissa un appuntamento

Richiedi informazioni

* Questi campi sono obbligatori

Calcola il tuo mutuo

Semplice e senza impegno
Anticipo

( % )
Mutuo

( % )

pochi semplici passi

inserisci i tuoi dati
Questionario completato
Grazie per aver richiesto un appuntamento senza impegno con un nostro Consulente del Credito e Assicurativo.

Hai inserito correttamente tutti i dati necessari e a breve riceverai una e-mail con un link da convalidare per inviare i tuoi dati.
Affiliato
Immobiliare Punta Marina Srl
Viale Dei Navigatori, 23 48122 Ravenna (RA)

Il nostro staff


  • Rocco Basanisi
    Collaboratore

  • Francesca Paesano
    Coordinatrice

  • Federico Pozzi
    Collaboratore
Viale Dei Navigatori, 23 48122 Ravenna (RA)
Zona: Punta Marina Terme - Marina di Ravenna
Mostra su mappa
Orari: LUNEDI - VENERDI 9.00-13.00 / 15.00-19.00 SABATO 9.00-13.00, pomeriggio su appuntamento
Affiliato
Immobiliare Punta Marina Srl
Viale Dei Navigatori, 23 48122 Ravenna (RA)

2025 Tecnocasa Franchising S.p.A. - P. IVA 08365160152 - Via Monte Bianco 60/A 20089 Rozzano (MI). Ogni agenzia ha un proprio titolare ed è autonoma. Privacy policy | Policy utilizzo | Cookie policy