Bilocale in vendita

Ravenna, Viale IV Novembre - Marina Di Ravenna
€ 159.000
2 locali 2 locali
44 Mq 44 Mq
1 bagno 1 bagno

Bilocale in vendita

Ravenna, Viale IV Novembre - Marina Di Ravenna

Descrizione annuncio

MARINA DI RAVENNA - VIALE QUATTRO NOVEMBRE

In zona tranquilla e comoda ai servizi, proponiamo appartamento al piano terra con piccolo ingresso indipendente, ideale come investimento o soluzione per chi cerca comfort e praticità.

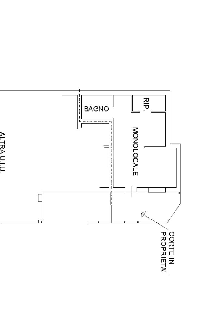
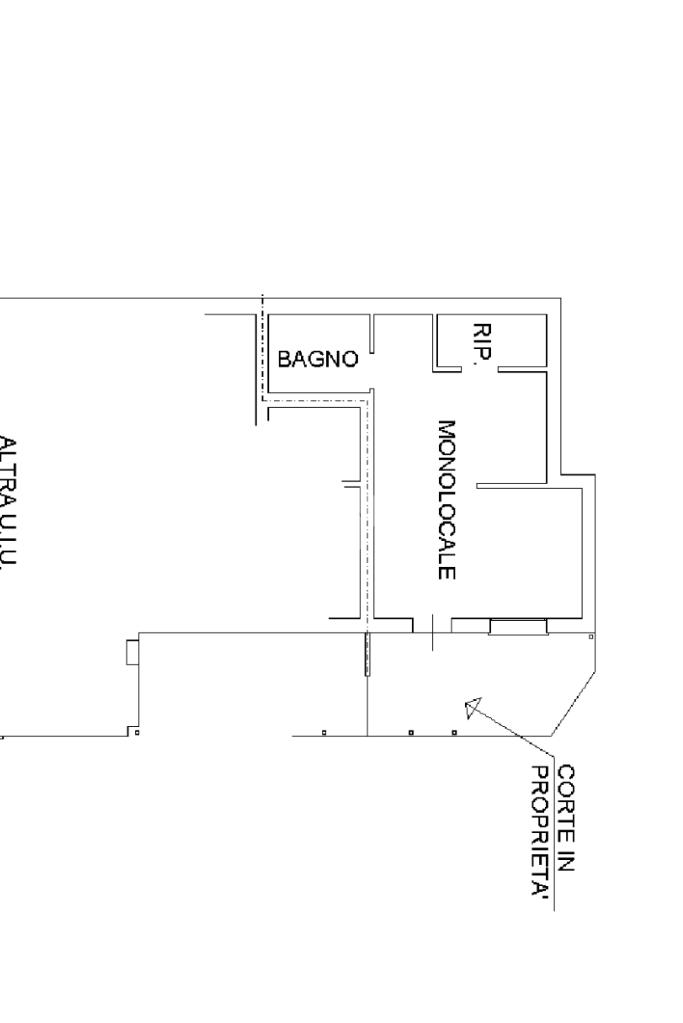
Composizione:

Soggiorno con angolo cottura

Bagno con box doccia

Ampia camera matrimoniale

Dotazioni:

Aria condizionata

Riscaldamento autonomo

Posto auto coperto

Cantina

L’immobile è attualmente locato con regolare contratto di affitto fino al 30/10/2026, garanzia di rendita immediata.

Ottima posizione a Marina di Ravenna, vicina al mare e ai principali servizi.

Per maggiori informazioni o per fissare un appuntamento contattaci!

Mostra tutto

Nelle vicinanze

Trasporto pubblico Trasporto pubblico
Trasporto pubblico
60 m
Marina Di Ravenna Pace
Marina Di Ravenna Pace
340 m
Ricariche auto elettriche Ricariche auto elettriche
Hera Marina di Ravenna
160 m
EnelX Piazza Italia Marina Romea
3,0 Km
Scuole Scuole
Scuole
440 m
Farmacia Farmacia
Comunale 5
490 m
Supermercati Supermercati
despar
220 m
Supermercati
1,7 Km
Negozi Negozi
inCoop
760 m
Bar Bar
Caffè del Mare
230 m
Rocksea Bar
270 m
Bagno Waimea n. 14
380 m
Bar Negramaro
410 m
Bar Timone
850 m
Ristoranti Ristoranti
Mowa Street Bar and Restaurant
210 m
Le Torri
270 m
La Nuova Rosa dei Venti
620 m
Silvio
760 m
Al cartoccio
760 m
Mostra tutto

Caratteristiche

Rif.:
61149648
Piano:
Basso di 1
Totale piani:
1
Posti auto:
1
Camere da letto:
1
Arredamento:
Parziale
Mostra tutto
Prezzo Prezzo
€ 159.000
Rata mutuo Rata mutuo
€ 741 / mese
Spese annue Spese annue
€ 0
Proponi il tuo prezzoProponi il tuo prezzo

Classe Energetica

Questo immobile è esente da classe energetica
Anno di costruzione:
1980
Riscaldamento:
Autonomo
Tipo impianto:
A radiatori
Tipo alimentazione:
Metano

Ti interessa visionare l'immobile?

Fissa un appuntamento  Fissa un appuntamento

Richiedi informazioni

Clicca su Leggi per aprire l'informativa
* Questi campi sono obbligatori

Calcola il tuo mutuo

Semplice e senza impegno
Anticipo

( % )
Mutuo

( % )

pochi semplici passi

inserisci i tuoi dati
Questionario completato
Grazie per aver richiesto un appuntamento senza impegno con un nostro Consulente del Credito e Assicurativo.

Hai inserito correttamente tutti i dati necessari e a breve riceverai una e-mail con un link da convalidare per inviare i tuoi dati.
Affiliato
Immobiliare Punta Marina Srl
Viale Dei Navigatori, 23 48122 Ravenna (RA)

Il nostro staff


  • Rocco Basanisi
    Collaboratore

  • Francesca Paesano
    Coordinatrice

  • Federico Pozzi
    Collaboratore
Viale Dei Navigatori, 23 48122 Ravenna (RA)
Zona: Punta Marina Terme - Marina di Ravenna
Mostra su mappa
Orari: LUNEDI - VENERDI 9.00-13.00 / 15.00-19.00 SABATO 9.00-13.00, pomeriggio su appuntamento
Affiliato
Immobiliare Punta Marina Srl
Viale Dei Navigatori, 23 48122 Ravenna (RA)

2025 Tecnocasa Franchising S.p.A. - P. IVA 08365160152 - Via Monte Bianco 60/A 20089 Rozzano (MI). Ogni agenzia ha un proprio titolare ed è autonoma. Privacy policy | Policy utilizzo | Cookie policy